Design that feels like home — beautifully refined, effortlessly you.
Start Your ProjectWhat It Really Takes to Renovate a Kitchen the Right Way

A kitchen renovation is one of the most significant investments you can make in your home—not just financially, but in how you live day to day.
When done well, it becomes the foundation of the home: functional, intentional, and effortlessly elevated. When done without the right approach, it can quickly become overwhelming, delayed, and costly.
At 3Si Design, we approach every luxury kitchen remodel with a clear understanding: the outcome is only as strong as the process behind it.
It Starts with the Right Design Process

Kitchen Materials

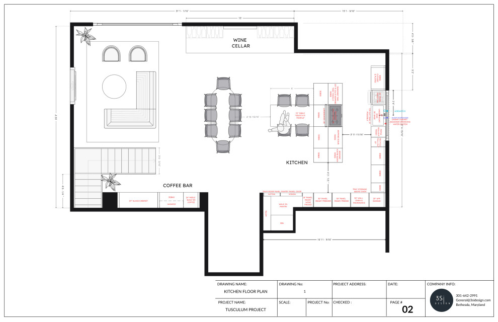
Kitchen Floor Plan

Kitchen Lighting Plan

Kitchen Electrical Plan
A successful kitchen renovation doesn’t begin with finishes—it begins with planning.
Before any construction starts, every detail must be thoughtfully considered:
- Layout and spatial flow
- Appliance placement and clearances
- Cabinetry design and functionality
- Lighting layers and electrical planning
- Material selections and finish coordination
This phase defines how the kitchen will not only look, but how it will function for years to come.
Without a clearly defined kitchen design process, decisions become reactive rather than intentional, leading to compromises that impact both aesthetics and performance.
Understanding the Reality of Timelines
One of the most common misconceptions around a kitchen renovation is how long it truly takes.
High-end projects involve:
- Custom cabinetry with extended lead times
- Stone fabrication and installation scheduling
- Appliance procurement and coordination
- Contractor and trade sequencing
Each phase is dependent on the one before it. A delay in one area often impacts the entire timeline.
A well-managed project accounts for these variables from the beginning, setting realistic expectations and minimizing disruptions along the way.
The Complexity Behind the Scenes
What makes a luxury kitchen remodel truly complex isn’t just the design—it’s the coordination.
A single kitchen renovation can involve:
- General contractors
- Cabinet makers and millworkers
- Stone fabricators
- Electricians and plumbers
- Appliance vendors and installers
Each trade plays a critical role, and their work must be carefully sequenced and aligned.
Without proper oversight, miscommunication between trades can lead to:
- Incorrect installations
- Rework and added costs
- Delays that extend the project timeline
This is where having a full-service interior designer becomes essential. Not just for design, but for ensuring everything is executed as intended.




Where Projects Often Go Wrong
Many kitchen renovations begin with the best intentions but without the right structure, issues quickly arise.
Common challenges include:
- Finalizing layouts too late in the process
- Selecting materials without considering lead times
- Lack of coordination between trades
- Design decisions being made mid-construction
- Underestimating the level of detail required
These missteps often result in added stress, budget overruns, and a final result that falls short of the original vision.
The Value of a Full-Service Approach
At 3Si Design, our Full-Service Design ensures that every phase of your kitchen renovation is handled with precision and intention.
From initial concept through final installation, we:
- Develop a fully resolved design before construction begins
- Coordinate with contractors and trades throughout the process
- Manage procurement of materials, finishes, and furnishings
- Oversee installation to ensure every detail is executed correctly
This approach allows you to move through your renovation with clarity and confidence knowing that every decision has been thoughtfully considered and expertly managed.
A Kitchen Designed to Last
A well-designed kitchen is not defined by trends. It’s defined by how it functions, how it feels, and how seamlessly it supports your everyday life.
When the process is done right, the result is a space that feels effortless, cohesive, and enduring.







Start Your Kitchen Renovation with Confidence
If you’re planning a kitchen renovation, or full-home transformation, the process matters just as much as the final result.
At 3Si Design, we specialize in creating elevated, thoughtfully executed spaces through our Full-Service Design.
Ready to begin your kitchen renovation?
We invite you to connect with us and start your project with intention.
